|產品詳情/PRODUCT DETAIL

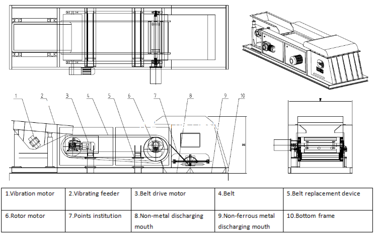
Equipment introduction
1. It is mainly applicable to the separation of non-ferrous metals such as copper and aluminum from industrial wastes and household wastes for more precise sorting.
2. It can be widely used in the fields of garbage disposal, dismantling and recycling of used cars, recycling of waste electrical appliances, and materials processing in non-ferrous metal processing industries.
3. The effect of the machine on the metal sorting above 25mm squared is more obvious.
4. The machine has high-speed running parts, which will have a large vibration when running, and should have a solid and reliable installation foundation.
5. The machine has a strong alternating magnetic field, and the objects that respond to the alternating magnetic field should be far away from the sorting area.
6. The machine is controlled by variable frequency governor.
7. If the material contains iron, it should be used to remove iron before the machine.
Range of application:
1. Mainly suitable for the industrial waste, living garbage sorting out in copper, aluminum and other non-ferrous metals, used to more fine separation.
2. Can be widely used in garbage disposal, automobile dismantling, recycling of waste electrical appliance and other fields, and processing industry of non-ferrous metal materials processing and other industries.
3. Eddy current separator for a variety of nonferrous metals has good separation effect, it has strong adaptability, reliable mechanical structure, strong magnetic field, the characteristics of adjustable frequency.
Product advantages:
1. Adopt eccentric magnetic roller, can effectively prevent the magnetic particles into the magnetic roller surface, the effective protective magnetic roller and running belt.
2. To comparatively light, and the relatively small surface area of the material, separation effect is better than together.
3. The smart touch control cabinet system, frequency conversion control, running more stable and reliable.
4. Adopting PLC programmable control, one key start, the operation is simple.
Bearing imported bearing, long service life and work well.
5. Magnetic roller adopt effective magnetic system protection, prevent fall off when high-speed magnetic system.
6. The whole machine adopts a special process, precision, equipment run time with low noise and vibration.
7. The machine is installed a variety of detection and alarm devices, and real-time monitor the operation of every key part.
Working principle:
Eddy current separator is the use of conductor in the high frequency alternating magnetic field can generate induced eddy current principle to carry on the design:
1. when the machine work in the separation of magnetic roller surface produce high-frequency alternating magnetic field.
2. when the metal into the strong magnetic separation zone, and the metal internal induced eddy current.
3. the magnetic field produced by the eddy current magnetic field direction, on the other hand, there are mutually exclusive reaction.
4. the repulsive force function can put the electrical conductivity of metal was thrown forward, the realization of the aim of separation.
Design:

The use spot (Part)







Pursuing the TIANLI of Technology and Qulity
Dongyang Tianli Magnet Co., Ltd is the famous manufacturer of magnetic separator.
Magnetic is originated from China, service all over the world.
We are specialized in the research, is your reliable partner.















